PROJECTS
Multi-Tenancy Industrial Building
CLIENT
BONVR Pty Ltd
YEAR
2021
LOCATION
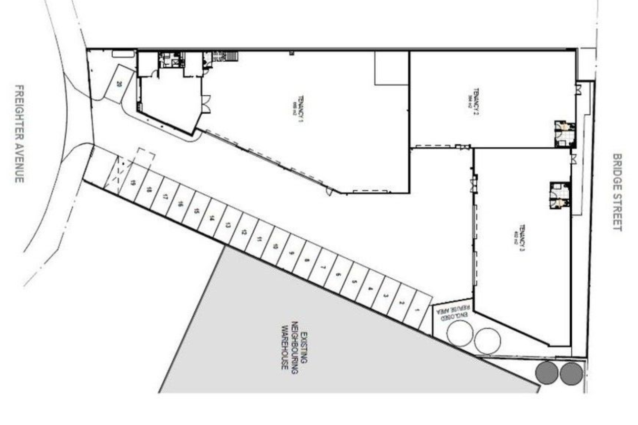
Freighter Avenue Wilsonton QLD
PROJECT CATEGORY
Industrial
PROJECT OUTLINE
BONVR Pty Ltd engaged Precinct Urban Planning to provide town planning assistance associated with the establishment of a multi-tenancy industrial building on vacant land at 9 Freighter Avenue, Wilsonton. The project involved seeking a development permit to construct three workable industrial use tenancies that could be utilised by medium-impact industries. Each tenancy has an office entry visible from carparking areas, separate amenities area and roller door entries for service vehicle access. The development area is enhanced by landscaping. This development increases the availability of industrial tenancy options for businesses within the local community.
KEY TASKS
- Provision of Strategic and Statutory Planning Advice
- Development Application Preparation
- DA Process Management
- Development Facilitation





