PROJECTS
Master planned mixed use staged subdivision and development Toowoomba
CLIENT
George Weston Foods Limited
YEAR
2011
LOCATION
Toowoomba QLD
PROJECT CATEGORY
Mixed use and tourism
PROJECT OUTLINE
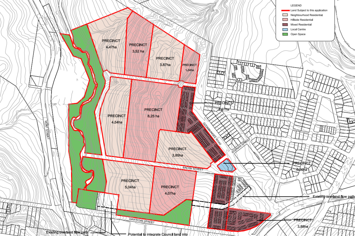
Precinct Urban Planning was engaged by George Weston Foods Limited to provide town planning assistance associated with the subdivision and development of combined land holdings in Toowoomba. The project involved integrated development of the land for commercial, industrial and residential uses in accordance with a conceptual master plan.
KEY TASKS
- Provision of Strategic and Statutory Planning Advice
- Development Application Preparation
- IDAS Process Management
- Development Facilitation





